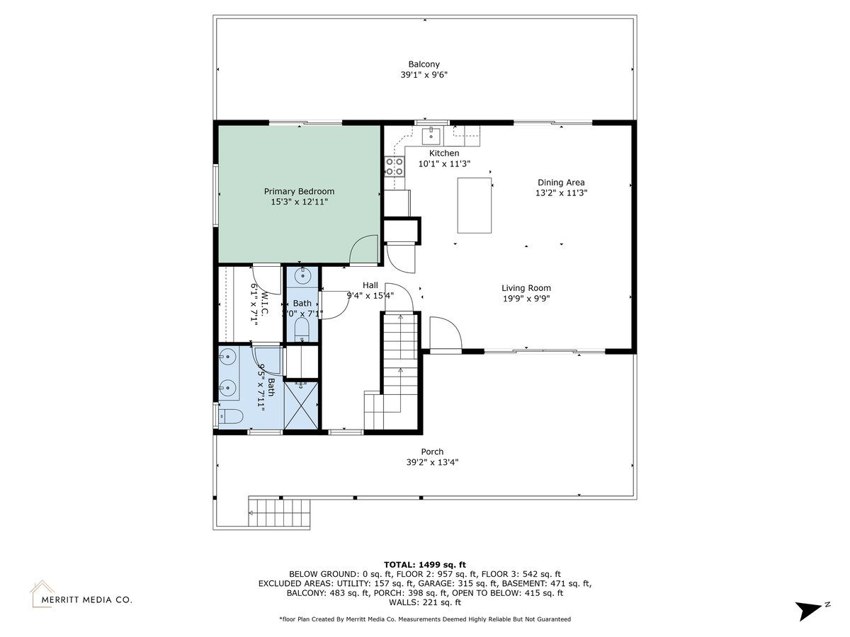
The Beechwood Model is a three-story home featuring three bedrooms, two full bathrooms, and three balconies or porches. The open-concept living and kitchen area is perfect for entertaining, and the first-floor primary suite includes a spacious walk-in closet. The second floor offers two additional bedrooms and a private balcony. An unfinished basement provides ample space for a potential fourth bedroom, media room, hangout space, or more. Plus, a one-car garage with ample storage space.






















